Painstaking Lessons Of Tips About How To Build A Sand Volleyball Court

How To Construct A Volleyball Court - Volleyballusa.com

How To Construct A Volleyball Court - Volleyballusa.com

How To Construct A Volleyball Court - Volleyballusa.com

How To Construct A Volleyball Court - Volleyballusa.com

How To Construct A Volleyball Court - Volleyballusa.com
How To Construct A Volleyball Court - Volleyballusa.com
Volleyball Court Construction Process - Youtube

Volleyball Court Construction Process - Youtube

How To Construct A Volleyball Court - Volleyballusa.com
How To Construct A Volleyball Court - Volleyballusa.com
Building A Sand Beach Volleyball Court In Your Backyard - Youtube
Building A Sand Beach Volleyball Court In Your Backyard - Youtube
Building A Sand Beach Volleyball Court In Your Backyard - Youtube
Source From : image source

To be eligible to conduct an.

How to build a sand volleyball court. Remove rocks or anything else that. In extremely hot climates the sand will need to be watered down between matches. With a good gravel base, one foot of sand is usually enough.

A beach volleyball court can cost a lot if you want a private one. The doubles court is now only 8x8 meters. The process described below and the materials recommended for building a sand court are guided by the ncaa sand volleyball.

If trying to keep costs to a. Most yards are big enough to house a court this size, but if your yard is too small, you can shrink the proportions accordingly. When building a sand volleyball court, it is important to consider the type of sand that will be used.

It is possible to use the court of 6. The expenses breakdown looks generally like this: Super exited to share this project with you guys, this was a insane project that im so happy we got to do.

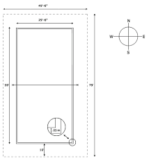
If possible, allow at least 6½ feet of space around the court for safety. A beach volleyball court measures 29’6″ feet by 59′ feet for 2 players per team and 26’3″ x 52’6″ for 6 players per team. Remember that once you build the sand court, the court will be higher than the other courts (if.

The net posts must be rounded and smooth with a height of 2.55 meters and fixed to the ground at a. Hiring a bobcat or front end loader to dig a pit. Washed masonry sand is recommended for best results and ensures cleanliness.

Build A Sand Volleyball Court - Volleyball.com

Build A Sand Volleyball Court - Volleyball.com

How To Build A Beach Volleyball Court | Sports Imports

How To Build A Beach Volleyball Court | Sports Imports

Build A Sand Volleyball Court - Volleyball.com
Build A Sand Volleyball Court - Volleyball.com
How To Build A Sand Volleyball Court In Your Backyard – Home
How To Build A Sand Volleyball Court - Volleyball Mecca

How To Build A Sand Volleyball Court - Mecca

Volleyball – Backyard Games - Landscaping Network

How To Build A Sand Volleyball Court In Your Backyard – Home
How To Construct A Volleyball Court - Volleyballusa.com

How To Construct A Volleyball Court - Volleyballusa.com

35 Best Backyard Court Ideas | Volleyball Court Backyard, Backyard Court,  Backyard

35 Best Backyard Court Ideas | Volleyball Backyard, Court,

How To Construct A Volleyball Court - Volleyballusa.com
How To Construct A Volleyball Court - Volleyballusa.com
Sand Volleyball Court | Sand Volleyball Court, Volleyball Court Backyard,  Summer Outdoor Fun

Sand Volleyball Court | Court, Backyard, Summer Outdoor Fun

How To Build A Sand Volleyball Court In Your Backyard – Home

How To Construct A Volleyball Court - Volleyballusa.com
How To Construct A Volleyball Court - Volleyballusa.com
Learn How To Build A Beach Volleyball Court
Learn How To Build A Beach Volleyball Court